欢迎来到上海装潢网
    首页 > 工地播报 > 工地列表 > 上海普陀区住宅公寓-小户型93平米17.8万元
    已完工
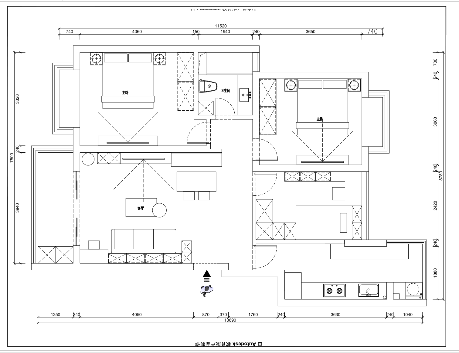
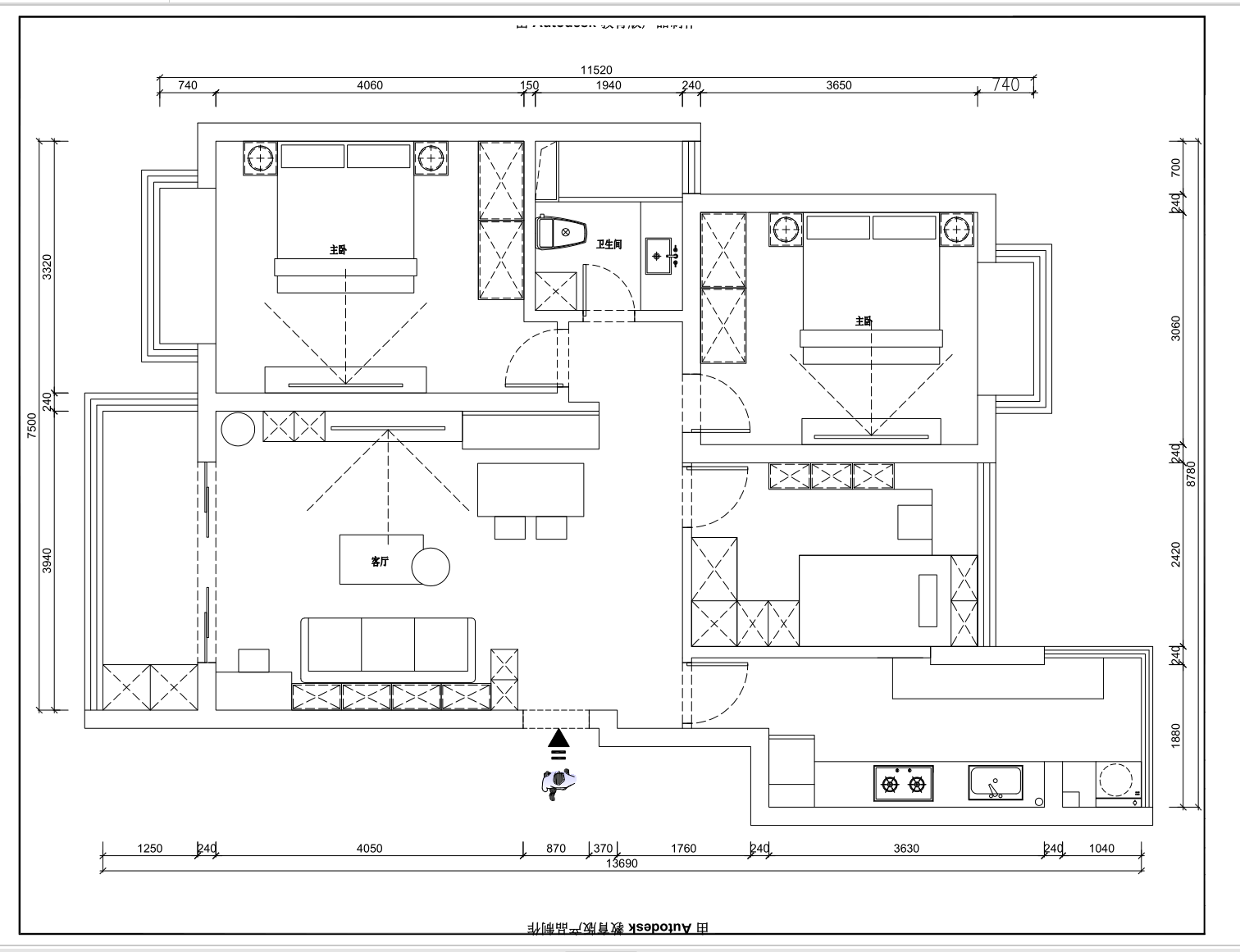
    上海普陀区住宅公寓-小户型93平米17.8万元
    浏览量: 1298
    微信分享
    我要预约
    (业主) 王先生
    房屋类型:
    住宅公寓-小户型
    承包方式:
    全包
    预算金额:
    17.8万元
    房屋面积:
    93㎡
    开工日期:
    2023-07-08
    完工日期:
    2023-10-28
    装修风格:
    现代简约
    工地编号:
    230624036
    联系人:
    赵丽华 店长
    联系电话:
    400-118-8580
    公司地址:
    沪太路1866号诺诚M7创意园 A座301
    口碑值:
    58535 全站排名第1
    参与人员
    官方客服
    装潢网
    王先生
    业主
    汪女士
    业主
    上海乐杰装饰设计有限公司
    装修公司
    朱越超
    第三方监理
    贺万烽
    设计师
    赵刚
    项目经理
    洁玉
    门店经理
    孙士宽
    施工队长
    陈丝雨
    材料人员
    杨富民
    监理
    丹丹
    售后部经理
    吉娅绮
    材料人员
    文欣
    客服人员
    业主评价
    汪女士 (业主)
    2023-11-05 18:53:27
    电脑端
    评价:

    谢谢乐杰,也谢谢装潢网。现在装修结束,并已经竣工验收,乐杰各方的服务与付出,让我们收获了合意的新居。乐杰的设计师小贺根据我们的房子结构和要求,精心设计、耐心讲解方案理念,以我们比较纠结的性格,又几经修改方案,最终给出了更适合我家的设计。项目经理孙队,施工过程中特别注意和我们沟通,有问题及时解决,整个装修过程与孙队可以说合作愉快。店长Ada及时关注装修进展,我们有什么问题Ada都能够群里及时回应。整个装修时间安排紧凑,效果理想!

    星级评分:
    节点播报
    竣工阶段
    官方客服 (装潢网) 2023-11-06 09:21:19 发布于 电脑端 :
    工地状态设置为:已完工
    汪女士 (业主) 2023-11-05 18:56:45 发布于 APP :
    施工竣工验收
    上海乐杰装饰设计有限公司 (装修公司) 2023-10-29 12:33:14 发布于 电脑端 :
    完美竣工验收,得到了装潢网监理和业主的好评。感谢业主信任,再接再厉,服务好更多的客户
    朱越超 第三方监理 2023-10-28 11:55:24 发布于 APP :
    今天我去了祁连山南路999弄,交房验收完成
    施工质量蛮好,设计大气。总体评价很好
    上海乐杰装饰设计有限公司 (装修公司) 2023-10-24 08:02:14 发布于 APP :
    10月22日油漆收尾结束,定于27日开荒保洁,28号竣工交房!谢谢各位同仁的配合及业主认可支持![抱拳][抱拳][抱拳]
    油漆阶段
    上海乐杰装饰设计有限公司 (装修公司) 2023-10-22 11:58:59 发布于 APP :
    油漆最后收尾,可以完美交付啦
    上海乐杰装饰设计有限公司 (装修公司) 2023-10-08 09:06:38 发布于 APP :
    10月7号工地播报:尊敬的业主您好!已于2023年10月7日按计划完成了地板施工项目。经公司方自检,本项目符合质量验收标准和要求。现将现场项目完工的实景照片及安装验收单照片发送,业主也非常满意
    上海乐杰装饰设计有限公司 (装修公司) 2023-09-25 09:07:29 发布于 APP :
    现在施工阶段:油?
    预计结束日期:9月28日
    今日施工内容:全屋墙面打磨完成
    工人姓名:刘祥
    明日施工内容:无人等涂料
    工程排期如下:
    9/10-9/28油漆结束
    9月28日后主材逐步安装
    ……
    磨砺匠心极致服务,乐杰认证产业工人竭诚服务;
    有不满意的地方,随时提出。我们一定配合。
    泥木阶段
    上海乐杰装饰设计有限公司 (装修公司) 2023-09-13 10:26:16 发布于 APP :
    9-9号装潢网进行了泥木验收。验收合格,业主对孙队长前期的服务和装修质量非常满意,施工进入油漆阶段,油漆预计28号结束,期待早日落地完工
    上海乐杰装饰设计有限公司 (装修公司) 2023-09-07 15:24:19 发布于 电脑端 :
    9月6号施工内容:
    现在施工阶段:泥木后期
    预计结束日期:9月10
    今日施工内容:木工收尾结束
    工人姓名:孙士宽
    明日施工内容:无人,安排在星期六泥木验收
    工程排期如下:8/26-9/10泥木结束
    9/10-9/30油漆结束

    ……
    磨砺匠心极致服务,乐杰认证产业工人竭诚服务;
    有不满意的地方,随时提出。我们一定配合。
    上海乐杰装饰设计有限公司 (装修公司) 2023-09-05 08:12:30 发布于 APP :
    9月4号施工内容
    尊敬的业主您好!
    现在施工阶段:泥木后期
    预计结束日期:9月10
    今日施工内容:木工做柜子
    工人姓名:孙士宽
    明日施工内容:现场做柜体
    工程排期如下:8/26-9/10泥木结束
    9/10-9/30油漆结束

    ……
    磨砺匠心极致服务,乐杰认证产业工人竭诚服务;
    有不满意的地方,随时提出。我们一定配合。
    上海乐杰装饰设计有限公司 (装修公司) 2023-09-01 08:12:08 发布于 APP :
    8月31号施工播报:
    尊敬的业主您好!
    现在施工阶段:泥木后期
    预计结束日期:9月10
    今日施工内容:木工做柜子
    工人姓名:孙士宽
    明日施工内容:现场做柜体
    工程排期如下:8/26-9/10泥木结束
    9/10-9/30油漆结束

    ……
    磨砺匠心极致服务,乐杰认证产业工人竭诚服务;
    有不满意的地方,随时提出。我们一定配合。
    上海乐杰装饰设计有限公司 (装修公司) 2023-08-31 09:19:16 发布于 APP :
    8月30号施工内容
    尊敬的业主您好!
    现在施工阶段:泥木后期
    预计结束日期:9月10
    今日施工内容:木工做柜子
    工人姓名:孙士宽
    明日施工内容:现场做柜体
    工程排期如下:8/26-9/10泥木结束
    9/10-9/30油漆结束

    ……
    磨砺匠心极致服务,乐杰认证产业工人竭诚服务;
    有不满意的地方,随时提出。我们一定配合。
    上海乐杰装饰设计有限公司 (装修公司) 2023-08-28 11:13:48 发布于 电脑端 :
    瓦工美缝完成,并做好了地面保护
    水电阶段
    上海乐杰装饰设计有限公司 (装修公司) 2023-07-27 14:07:24 发布于 电脑端 :
    水电验收阶段,业主很满意哦,工地也很干净工整,
    拆改阶段
    上海乐杰装饰设计有限公司 (装修公司) 2023-07-08 11:12:59 发布于 电脑端 :
    开工阶段啦,开始拆旧,一切都在顺利进行中。期待完美落地
    准备阶段
    上海乐杰装饰设计有限公司 (装修公司) 2023-06-26 14:57:55 发布于 电脑端 :
    设计师细心的效果更改和布局更改,要帮设计师进行效果图一比一还原,期待效果呈现
    上海乐杰装饰设计有限公司 (装修公司) 2023-06-24 10:41:35 发布于 电脑端 :
    经过近一个月的方案沟通、效果图修改,预算沟通,于6月23号签定合同,感谢业主的信任,在后面装修过程中,定不负所拖,为业主建造一个完美的新家
    官方客服 (装潢网) 2023-06-24 10:38:10 发布于 电脑端 :
    业主王先生的装修工地已成功创建,施工方为上海乐杰装饰设计有限公司,播报须知:为了通过播报评比出最美工地,所有施工人员必须参与到播报中,装潢网工地播报上传图片要求横拍清晰照片,每排为五张,两排为十张,依次类推加上文字说明,让装修小白也能一目了然,在播报中的相关人员积极播报,利用好平台来展现自己的舞台,最后取得业主及第三方的好评才是我们真正服务的体现,每一个阶段不得少于两次播报,由装潢网巡视特派员审核播报,如有疑问请拨打:400-118-8580
    预约工地播报
    或致电400-118-8580咨询
    全程监督
    全程跟踪施工进度
    合同审核
    装修合同专家审核
    工人素质
    人员素质和服务保证
    施工规范
    符合施工标准
    按时完工
    杜绝拖延工期
    在线装修预约
    已有207999位业主申请装修预约服务
    立即申请