欢迎来到上海装潢网
    首页 > 工地播报 > 工地列表 > 上海崇明区乡村公寓-小户型农村房子局部改装21.6万元
    已完工
    上海崇明区乡村公寓-小户型农村房子局部改装21.6万元
    浏览量: 1410
    微信分享
    我要预约
    (业主) 陆琴
    房屋类型:
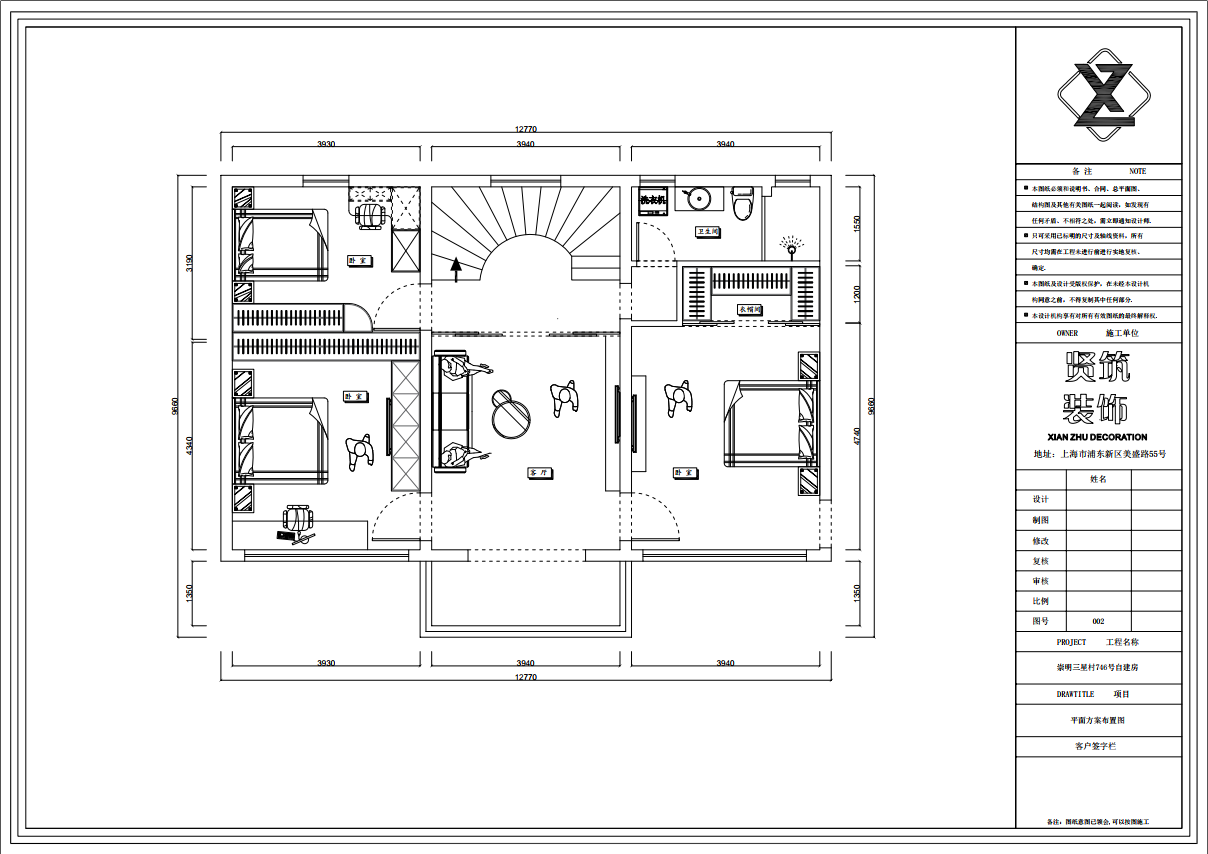
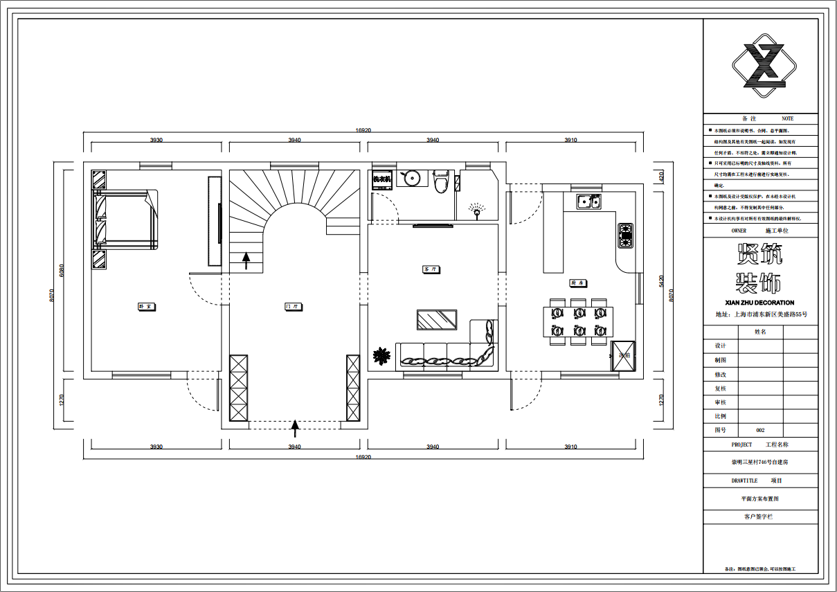
    住宅公寓-小户型
    承包方式:
    半包
    预算金额:
    21.6万元
    房屋面积:
    150㎡
    开工日期:
    2024-01-07
    完工日期:
    2024-08-08
    装修风格:
    简约
    工地编号:
    231216082
    联系人:
    储海兵 经理
    联系电话:
    400-118-8580
    公司地址:
    兰嵩路555号森兰美伦2幢A座1506室
    口碑值:
    24211 全站排名第24
    参与人员
    官方客服
    装潢网
    陆琴
    业主
    上海贤筑装饰设计工程有限公司
    装修公司
    张卫东
    项目经理
    项培军
    设计师
    装潢网朱老师
    监理
    储海兵
    门店经理
    张老师
    客服人员
    高老师
    售后部经理
    宗雪峰
    材料人员
    朱经理
    材料人员
    许国华
    水电工
    王赤忠
    木工
    叶同华
    泥工
    刘青山
    油漆工
    业主评价
    陆琴 (业主)
    2024-11-23 12:35:40
    电脑端
    评价:

    崇明老家自建房需要翻新一下。通过网络平台结识了装潢网邱老师,通过她的推荐了解到了贤筑装饰设计有限公司,被其专业水准和好评所吸引。经过详细考察后,我决定选择贤筑装饰负责我家的装修工程。实践证明,邱老师的推荐非常准确,我的选择十分明智。在整个装修过程中,项目经理展现出了极高的职业素养和专业能力,无论是在设计方案的讨论阶段,还是在施工过程中的每一个细节,张工,项老师,包括储总都表现出极大的耐心和细致。特别是在装修过程中遇到了一些意想不到的问题,如水管布局的调整和墙面处理的技术难题,提供了切实可行的解决方案,保证了项目的顺利进行。不仅如此,贤筑装饰在材料选择上提供了多种优质选项,确保了装修效果的同时,也充分考虑了我的预算需求。从设计初期的沟通交流,到施工阶段的严格监督,再到后期的服务跟进,贤筑装饰的专业团队为我提供了全方位的支持和服务。他们的工作不仅让我的新家焕然一新,更加舒适美观,更重要的是,这次合作让我深刻感受到了装修行业应有的高标准和高水平服务。因此,我毫不犹豫地向周围正寻找装修公司的好友推荐贤筑装饰,相信他们同样能享受到这样高质量的服务和令人满意的结果。总之,这是我做出的最佳决定之一,它不仅帮助我实现了理想中的家居环境,还让我对未来的生活充满了期待。

    星级评分:
    节点播报
    竣工阶段
    陆琴 (业主) 2024-11-23 10:20:25 发布于 电脑端 :
    有幸在抖音上结识了装潢网邱老师,推荐了解到上海贤筑装饰设计有限公司,并被其专业的服务和良好的口碑所吸引。经过一番考察后,我决定选择贤筑装饰为我的新家进行装修。事实证明有了邱老师的背书我的选择是非常正确的,整个施工过程中项目负责人张工,耐心的帮我解决了各种突发状况,满足了我各种要求,比如说在装修的过程中,一些预料之外的问题,比如材料选择和施工进度的调整。每一次,张工都能迅速响应并提出解决方案,确保项目顺利推进。综上所述,贤筑装饰公司里无论是前期的设计沟通还是中期的施工监督,以及后期的服务跟进,让我体验感很好,他们不仅帮助我打造了一个温馨舒适的家,更重要的是,通过这次合作,我重新认识了装修行业的标准和服务水平。因此,我愿意向身边正在寻找装修公司的朋友们强烈推荐贤筑装饰,相信他们也能享受到同样的优质服务和完美成果。
    油漆阶段
    装潢网朱老师 (监理) 2024-09-18 09:20:07 发布于 APP :
    恭喜陆女士竣工验收通过,开关插座接线正确,厨房间水槽龙头冷热正确,卫生间马桶正常,淋浴房龙头冷热正确,下水畅通,空调正常,符合交房条件,感谢陆女士对上海装潢网的信任。
    上海贤筑装饰设计工程有限公司 (装修公司) 2024-06-03 20:28:53 发布于 电脑端 :
    油漆师傅正在批嵌顶面腻子(顺便说明一下:只有顶面做乳胶漆,墙面是全屋饰面板)。今天测量定制柜的师傅到现场,我们工程部有关人员也一起到现场根据实际情况与客户陆姐交流,为客户把关。现场比较复杂的地方我们先在地上放样,让陆姐看得更通透一点。大家目标一致,希望最后能展现最完美的效果。感谢陆姐的积极配合,也感谢崇明建设村装饰工程中心所有同仁的辛苦付出!只有严格监督、铁面无私的把关才有精品工程!欢迎广大业主随时光临参观!
    泥木阶段
    上海贤筑装饰设计工程有限公司 (装修公司) 2024-05-31 18:56:19 发布于 电脑端 :
    监理朱老师今天到现场泥木工验收,老师认认真真的敲了每一片砖每一个角落。为客户负责的同时,也在实践中不断提高我们自己。
    我们也将竭尽全力服务好美一个客户。不骗人民,不骗党,检验合格才出厂,不上电视,不上报,全凭客户转介绍,产品稳定不靠谁。全民客户好口碑
    上海贤筑装饰设计工程有限公司 (装修公司) 2024-04-20 17:51:23 发布于 电脑端 :
    筑家路上难免磕磕绊绊
    每一次全力以赴并非总是万无一失,
    崇明自建别墅施工巡检,室外门窗刚更换完,泥工师傅正在贴砖。
    我们深知自己离一百分,还有很长的一段路要走。
    感谢你的包容,让我们将不完美化为一种前进的动力
    改进每一个微小的不足,竭尽全力让家装不留遗憾。
    再次感谢陆姐对上海贤筑装饰的信任,我们将尽其所能,精益求精!
    水电阶段
    装潢网朱老师 (监理) 2024-02-25 17:52:55 发布于 APP :
    恭喜陆女士今天的水、电工程验收通过,符合上海市装饰装修水电标准,但厨房间局部冷、热水管要分开,及几个强、弱电交叉处做一下屏蔽处理(现场已经交代完),可以进行下一阶段施工
    拆改阶段
    上海贤筑装饰设计工程有限公司 (装修公司) 2024-05-31 18:36:42 发布于 电脑端 :
    农村自建房基本没什么墙体改动,主要是老墙体修粉和一些外墙修复。师傅也很认真,高空作业也交代了一些施工安全注意事项。希望能得到客户陆姐的认可。
    准备阶段
    上海贤筑装饰设计工程有限公司 (装修公司) 2023-12-17 18:10:57 发布于 电脑端 :
    在上海装潢网各位老师幸苦付出下,
    上海贤筑装饰设计工程有限公司很荣幸与陆女士成功签约了装饰合同。
    感谢陆女士对贤筑装饰人的认可。业主的认可就是最好的赞许!
    我们贤筑装饰将严格按标准、按节点施工。
    贤筑人不负信任,与您一同打造美好家!
    官方客服 (装潢网) 2023-12-16 18:43:40 发布于 电脑端 :
    业主陆琴的装修工地已成功创建,施工企业为上海贤筑装饰设计工程有限公司,播报须知:为了通过播报评比出最美工地,所有施工人员必须参与到播报中,装潢网工地播报上传图片要求横拍清晰照片,每排为五张,两排为十张,依次类推加上文字说明,让装修小白也能一目了然,在播报中的相关人员积极播报,利用好平台来展现自己的舞台,最后取得业主及第三方的好评才是我们真正服务的体现,每一个阶段不得少于两次播报,由装潢网巡视特派员审核播报,如有疑问请拨打:400-118-8580
    预约工地播报
    或致电400-118-8580咨询
    全程监督
    全程跟踪施工进度
    合同审核
    装修合同专家审核
    工人素质
    人员素质和服务保证
    施工规范
    符合施工标准
    按时完工
    杜绝拖延工期
    在线装修预约
    已有208330位业主申请装修预约服务
    立即申请