欢迎来到上海装潢网
    首页 > 工地播报 > 工地列表 > 包豪斯思潮:浦东新区住宅老钱风装饰
    施工中
    包豪斯思潮:浦东新区住宅老钱风装饰
    浏览量: 603
    微信分享
    我要预约
    (业主) 潘阿姨女儿
    房屋类型:
    住宅公寓
    承包方式:
    半包
    预算金额:
    16.39万元
    房屋面积:
    75㎡
    开工日期:
    2023-12-31
    完工日期:
    2024-05-31
    装修风格:
    包豪斯思潮:老钱风
    工地编号:
    231227042
    联系人:
    先荣集团客户服务中心 客服
    联系电话:
    400-118-8580
    公司地址:
    上海市黄浦区陆家浜路976号2108室
    口碑值:
    38240 全站排名第11
    参与人员
    官方客服
    装潢网
    潘阿姨女儿
    业主
    上海先荣建筑集团有限公司
    装修公司
    朱月超
    第三方监理
    大屿
    设计师
    刘智琛
    区总经理
    华文东
    项目经理
    节点播报
    水电阶段
    上海先荣建筑集团有限公司 (装修公司) 2024-05-10 12:56:39 发布于 电脑端 :
    昨日去到现场,目前等待全屋定制进场中,泥木工完全结束后可以第二次节点验收,墙面部分已经批嵌,使用肌理涂料的部分暂时不做批嵌以防止材料干扰开裂
    上海先荣建筑集团有限公司 (装修公司) 2024-03-14 22:36:27 发布于 手机端 :
    今天我来到了现场,查看施工进度,现场也有全屋定制的相关负责人及软装负责人测算尺寸,目前工地整体施工面貌良好,材料堆放整齐,现场无垃圾,地面平整,后续我会继续沟通
    朱月超 第三方监理 2024-03-11 21:08:28 发布于 APP :
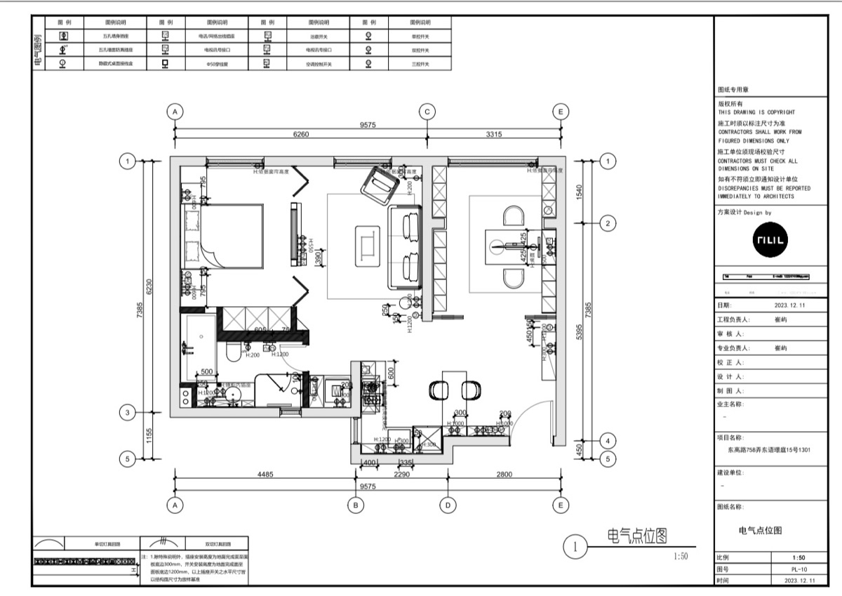
    本次水、电验收通过,强弱电分开大于10公分
    冷丶热分开,强、弱没有同洞、同槽,符合要求可以进行下一阶段施工
    拆改阶段
    上海先荣建筑集团有限公司 (装修公司) 2024-01-14 16:29:59 发布于 APP :
    经过一段时间的准备工作和拆除改造工作,今天我们与业主进行了水电交底的工作,设计师大屿和现场项目经理华文东进行了详谈,参与交底的还有中央空调和地暖的配套负责人,先荣建筑集团公司负责人也参与了交底工作,后续会继续跟进项目施工情况并检查了工地的安全情况。
    为了满足后续的施工快速畅通,前期的墙面铲除花费了不少功夫(图 4),现在墙面已经铲除干净可以满足基层的施工要求,接下来我们将进入水电施工的部分。让我们一起期待工地的后续进展!
    准备阶段
    上海先荣建筑集团有限公司 (装修公司) 2024-01-11 15:32:12 发布于 电脑端 :
    现场拆除正在进行中,由于小区开发商在浇筑墙面时混凝土返沙较为严重,所以我们将整体墙面全部铲除,并涂刷界面剂并重新修粉,所以前期的准备工作时间较长,接下来预计本周日1月14日进行水电交底。确定好水电点位,并逐步完善拆除新建部分。
    上海先荣建筑集团有限公司 (装修公司) 2023-12-31 11:10:42 发布于 APP :
    在 2023 年最后一天里,东高路项目顺利开工了!让我们一起期待项目的落地!再此,先荣建筑集团恭祝业主开工大吉,心想事成,万事如意!
    官方客服 (装潢网) 2023-12-27 10:54:05 发布于 电脑端 :
    业主潘阿姨女儿的装修工地已成功创建,施工企业为上海先荣建筑集团有限公司,播报须知:为了通过播报评比出最美工地,所有施工人员必须参与到播报中,装潢网工地播报上传图片要求横拍清晰照片,每排为五张,两排为十张,依次类推加上文字说明,让装修小白也能一目了然,在播报中的相关人员积极播报,利用好平台来展现自己的舞台,最后取得业主及第三方的好评才是我们真正服务的体现,每一个阶段不得少于两次播报,由装潢网巡视特派员审核播报,如有疑问请拨打:400-118-8580
    预约工地播报
    或致电400-118-8580咨询
    全程监督
    全程跟踪施工进度
    合同审核
    装修合同专家审核
    工人素质
    人员素质和服务保证
    施工规范
    符合施工标准
    按时完工
    杜绝拖延工期
    在线装修预约
    已有208070位业主申请装修预约服务
    立即申请