欢迎来到上海装潢网
    首页 > 工地播报 > 工地列表 > 上海静安区住宅公寓-小户型
    已完工
    上海静安区住宅公寓-小户型
    浏览量: 903
    微信分享
    我要预约
    (业主) 于先生
    房屋类型:
    住宅公寓-小户型
    承包方式:
    半包
    预算金额:
    12.98万元
    房屋面积:
    79.9㎡
    开工日期:
    2024-05-19
    完工日期:
    2024-09-18
    装修风格:
    工地编号:
    240520844
    联系人:
    孙建国 设计总监
    联系电话:
    400-118-8580
    公司地址:
    水清路345号2楼
    口碑值:
    31218 全站排名第14
    参与人员
    官方客服
    装潢网
    干先生
    业主
    上海吉美建筑装饰工程有限公司闵行分公司
    装修公司
    朱月超
    第三方监理
    朱永林
    项目经理
    朱正武
    设计师
    施昆
    门店经理
    胡世贵
    敲墙师傅
    方家河
    泥工
    丁成伟
    水电工
    方飞
    泥工
    郭祥
    木工
    节点播报
    泥木阶段
    朱月超 第三方监理 2024-08-24 08:54:40 发布于 APP :
    恭喜干先生本次泥木验收已经通过,厨房间、卫生间墙、地砖平整度达标,空鼓率在1%以下,淋浴房的,斜坡符合要求,木工吊顶平整,干壁钉距离小于30公分(但有几处部分干壁钉没有,现场已经交代好)房间地面平整度达标
    上海吉美建筑装饰工程有限公司闵行分公司 (装修公司) 2024-07-24 13:23:15 发布于 电脑端 :
    业主干先生家已进入木工吊顶阶段,使用的材料是轻钢龙骨石膏板吊顶。吊顶与后续的定制柜体的安装息息相关,与业主确定定制家具的最后尺寸与预留电源的点位的最终确定,现场进行动态调整,以保证与后续工作能够有条不紊的进行。
    上海吉美建筑装饰工程有限公司闵行分公司 (装修公司) 2024-07-10 14:32:51 发布于 电脑端 :
    干先生地面找平和养护工作已经结束。地面在找平后需要花一周时间进行浇水养护,找平后水泥会和水起化学反应知道为什么大量热气,此过程会消耗一部份水,所以需要进行浇水养护,否则地面反应不充分就会产生很多永久性裂缝。
    上海吉美建筑装饰工程有限公司闵行分公司 (装修公司) 2024-06-30 11:27:11 发布于 电脑端 :
    在经过朱老师的水电验收后,我们正式进行水电封槽,封窗也在次日安装完毕,卫生间防水和闭水试验也已经完成,后续地暖进场进行地暖施工。
    水电阶段
    朱月超 第三方监理 2024-06-22 18:18:38 发布于 APP :
    恭喜干先生本次水电验收已通过,电线在上
    水管在下,水管、电线管不同洞,强、弱电线管分开,没有走横槽等,符合行业标准
    可以进行下一阶段施工
    上海吉美建筑装饰工程有限公司闵行分公司 (装修公司) 2024-06-18 12:31:37 发布于 电脑端 :
    业主干先生家里的装修已经进入到水电施工阶段。水电材料已经送到现场。电线用的是熊猫电线和伟星套管、水管使用的是伟星水管。布管和穿线严格按照上海市装修标准进行操作,水管用吊卡固定。因为有中央空调、地暖、智能家具和净水设备,在准备阶段用天时间进行所有线路的定位,在确实好所有工作过后已经开始施工。
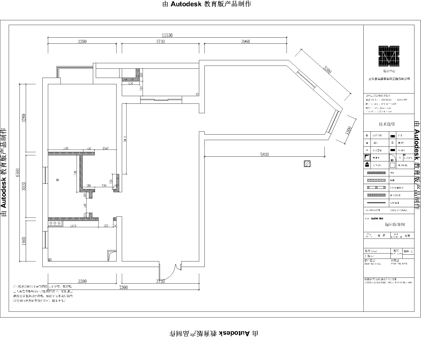
    拆改阶段
    上海吉美建筑装饰工程有限公司闵行分公司 (装修公司) 2024-06-08 17:57:21 发布于 电脑端 :
    业主干先生家的所有墙面已经粉刷完毕。在粉刷准备阶段,搅拌水泥砂浆过程中,添加相应比例的多功能乳液,可以有效减少新粉刷墙面产生空鼓、开裂等现象。粉刷工程结束之后,我们紧接着水电工序阶段。
    上海吉美建筑装饰工程有限公司闵行分公司 (装修公司) 2024-06-03 09:46:11 发布于 电脑端 :
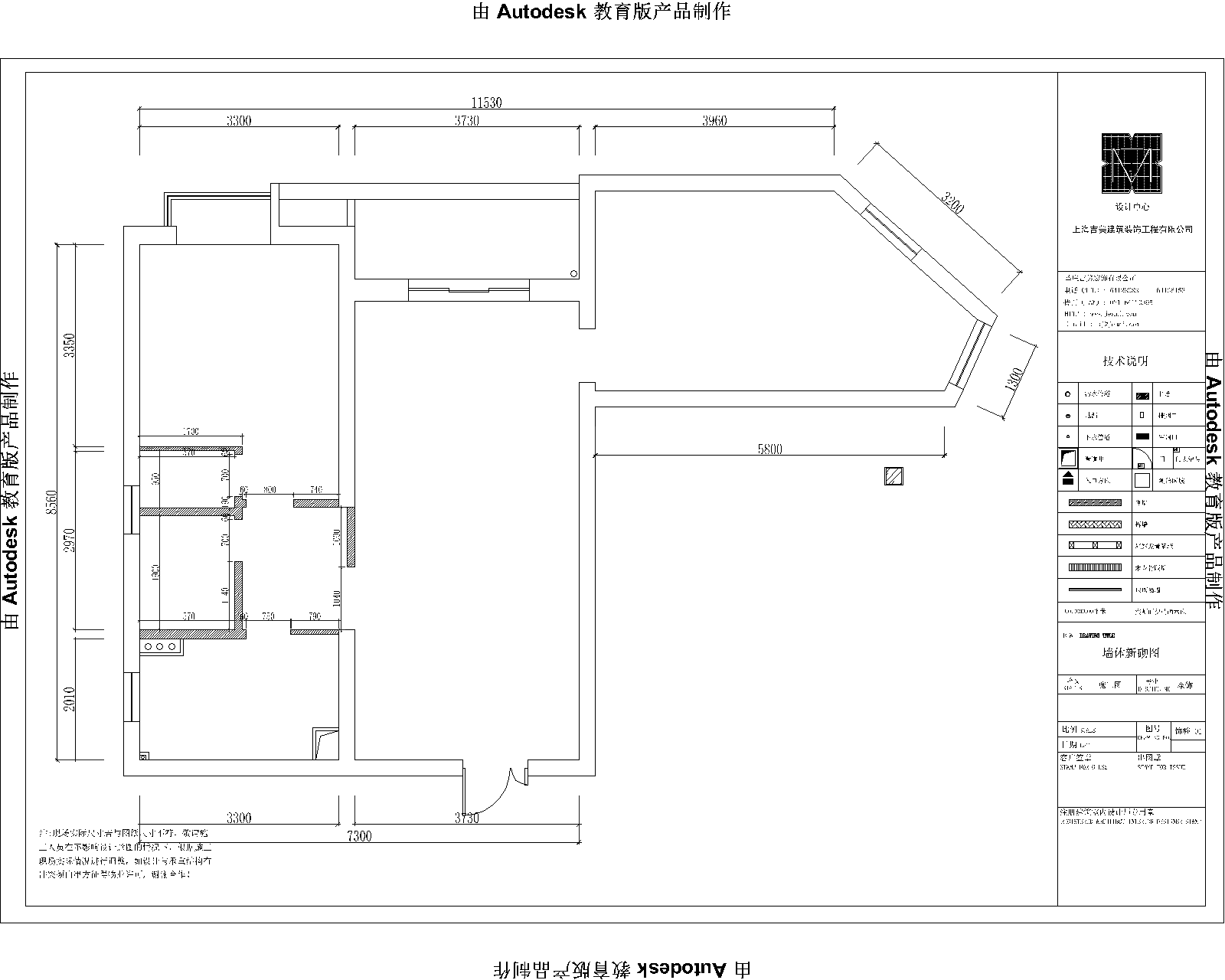
    在日常工地巡检过程中,墙体的新砌部分已经接近尾声,预计这两天就可以粉刷阶段。在砌墙过程中使用水平仪和铅锤进保证横平竖直,在与老墙的衔接处,在拆部工作时就已经将原底层部份多敲出15公分左右,同时在砌墙过程中在衔接处植入钢筋,保证新砌墙体与原墙体之间不会产生位移,在粉墙阶段就不会因为衔接处的新老墙交接问题产生裂缝而导致涂表层涂料产生裂缝。
    上海吉美建筑装饰工程有限公司闵行分公司 (装修公司) 2024-05-27 17:13:16 发布于 电脑端 :
    业主干先生家已经完全拆除完毕,在砌墙准备过程中,对厨卫新砌墙体底部浇筑止水梁,顾名思义,其作用就是防止卫生间的水渗漏到相邻的房间。同时浇筑门头过梁,内部放置Φ8的钢筋。
    等准备工作完全结束后开始进行砌墙工作。
    准备阶段
    上海吉美建筑装饰工程有限公司闵行分公司 (装修公司) 2024-05-20 18:03:45 发布于 电脑端 :
    业主干先生装修工程已于2024年5月19日正式开工!吉美装饰感谢干先生对我们的信任和支持,祝愿家居装修工程顺利进行,并确保最终成果完美符合您的期望。我们将竭尽全力,以最高的标准和质量完成每一个装修环节。再次感谢干先生对吉美装饰的信任和选择。我们一起共同见证一个美好家居的诞生!祝家装修工程顺利进行,开工大吉!
    官方客服 (装潢网) 2024-05-20 17:31:57 发布于 电脑端 :
    业主于先生的装修工地已成功创建,施工企业为上海吉美建筑装饰工程有限公司闵行分公司,播报须知:为了评比最美工地,所有施工人员须参与到播报中,播报图片要求清晰,并附加文字说明,让装修小白也能一目了然,积极播报,更好的体现工艺的专业性,取得业主的好评是我们服务的目标,每个阶段不得少于两次播报,装潢网巡视员会对工地和播报进行审核,如有疑问请拨打:400-118-8580
    预约工地播报
    或致电400-118-8580咨询
    全程监督
    全程跟踪施工进度
    合同审核
    装修合同专家审核
    工人素质
    人员素质和服务保证
    施工规范
    符合施工标准
    按时完工
    杜绝拖延工期
    在线装修预约
    已有208330位业主申请装修预约服务
    立即申请