欢迎来到上海装潢网
    首页 > 工地播报 > 工地列表 > 上海徐汇区住宅公寓-小户型133平米
    已完工
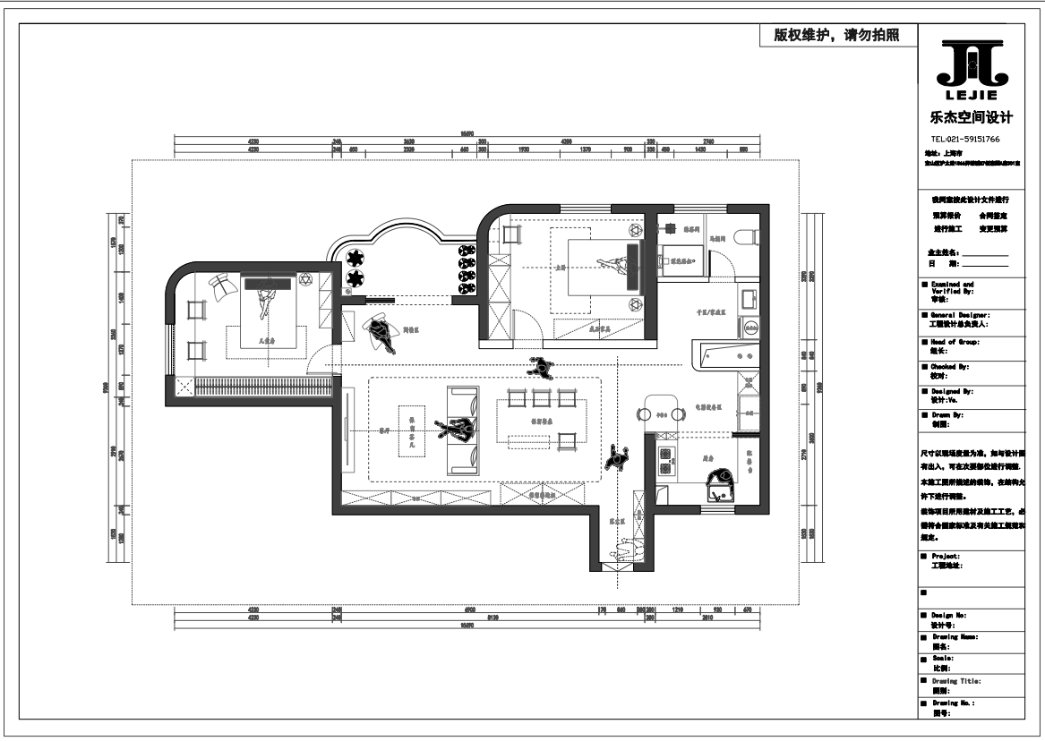
    上海徐汇区住宅公寓-小户型133平米
    浏览量: 787
    微信分享
    我要预约
    (业主) 吕先生
    房屋类型:
    住宅公寓-小户型
    承包方式:
    全包
    预算金额:
    14.5万元
    房屋面积:
    133㎡
    开工日期:
    2025-10-09
    完工日期:
    2026-01-31
    装修风格:
    法式
    工地编号:
    250928776
    联系人:
    赵丽华 店长
    联系电话:
    400-118-8580
    公司地址:
    沪太路1866号诺诚M7创意园 A座301
    口碑值:
    690 全站排名第138
    参与人员
    官方客服
    装潢网
    吕先生
    业主
    上海乐杰装饰设计有限公司
    装修公司
    程威
    第三方监理
    赵刚
    项目经理
    丹丹
    售后部经理
    丹丹
    售后部经理
    文欣
    客服人员
    杨富民
    监理
    文欣
    客服人员
    柳斌
    客服人员
    拆旧小袁
    敲墙师傅
    ada
    门店经理
    张长春
    施工队长
    夏川
    设计师
    节点播报
    竣工阶段
    程威 第三方监理 2026-05-12 13:44:05 发布于 电脑端 :
    第三方【竣工阶段】验收报告
    一、验收基本信息
    验收项目 吕先生家住宅家装竣工验收
    验收阶段 竣工阶段
    验收结论 经专业上门检测,本次家装施工整体符合《建筑装饰装修工程质量验收标准》(GB 50210)及《住宅装饰装修工程质量验收标准》(T/SDDA-004)2021的相关标准,满足设计文件要求及施工规范,经验业主与施工方共同验收准予验收通过。
    整体达标
    验收通过
    整体评分
    89分
    二、验收细节和评价
    细节1
    标题: (一)墙面装饰工程
    描述: 1. 裱糊工程
    验收情况:裱糊施工质量达标,验收合格。
    2.涂料工程
    验收情况:墙面涂料存在起皮、污染问题,不符合饰面涂料施工质量要求。
    整改要求: 卫生间过道及墙面需重新修补,确保表面平整无皱褶、无污渍。
    3. 饰面砖工程
    验收情况:饰面砖铺贴接缝均匀、密实,平整度、垂直度符合规范要求,无空鼓、脱落问题。验收合格。
    4. 木饰面工程
    验收情况:木饰面色泽均匀一致,安装牢固无松动,收口严密平整,无破损、变形问题。验收合格。
    图片:
    评价:
    四颗星
    细节2
    标题: (二)顶面装饰工程
    描述: 1. 涂料饰面工程
    验收情况:顶面涂层存在漏涂、透底、起皮及筒灯洞口未处理等现象,不符合涂料涂装施工规范。
    整改要求: 餐边柜上方孔洞、筒灯洞口及顶面需全部重新检查并修补。
    2. 拼装式吊顶工程
    验收情况:吊顶面板安装稳固,表面平整无变形,连接件安装规范、防锈处理到位,接缝严密。验收合格。
    图片:
    评价:
    四颗星
    细节3
    标题: (三)地面装饰工程
    描述: 1. 地砖及窗台石工程
    验收情况:地砖、窗台石铺贴牢固,无空鼓、裂纹、缺角问题,表面平整度、排水坡度符合设计及规范要求。验收合格。
    2. 木地板工程
    验收情况:木地板色泽基本一致,铺设牢固,踩踏无冒灰、无异响,伸缩缝预留合理,符合木地板施工验收标准。验收合格
    图片:
    评价:
    五颗星
    细节4
    标题: (四)门窗安装工程
    描述: 1. 外门窗工程
    验收情况:外门窗安装牢固,开关灵活顺畅,密封条安装严密,排水孔畅通,密封性、抗风压性符合要求。验收合格
    2. 内门窗工程
    验收情况:内门窗五金配件齐全、完好,启闭灵活,门窗与墙体缝隙填充饱满、密封到位,无松动、漏缝问题。验收合格。
    卫生间干区窗框(需整改):未安装,
    图片:
    评价:
    四颗星
    细节5
    标题: 三、细部工程与防水工程验收情况
    描述: (一)细部木作及安装工程
    橱柜、套装门、玻璃隔断、移门及台面安装牢固,外观完好无损,开启、使用功能正常,符合施工及使用要求,验收合格。
    阳台移门外框(需整改):
    (二)防水工程
    经现场闭水试验测试及全面检查,厨房、卫生间等防水区域,墙面、地面无渗漏、渗水痕迹,防水施工质量达标,验收合格。
    图片:
    评价:
    四颗星
    细节6
    标题: 四、安装工程分部验收情况
    描述: (一)给排水工程
    管道敷设牢固、布局规范,给水管道试压无渗漏,排水系统通畅无堵塞、返水问题,配件安装齐全完好,验收合格。
    (二)电气工程
    经现场检测,台盆插座缺失地线,不符合《建筑电气工程施工质量验收规范》(GB 50303)及住宅电路安全施工标准,存在用电安全隐患。
    整改要求: 立即排查线路,修复故障设备,并再次进行模拟试验,确保漏电保护动作灵敏、有效,符合《住宅装饰装修工程施工规范》(GB 50327)强条要求。其余电气安装项目验收合格。
    (三)通风与空调工程
    通风、空调设备安装牢固,运转正常无异常噪音,风口安装规范、密封严密,通风效果符合设计要求,验收合格。
    评价:
    四颗星
    三、验收说明
    附加信息 经业主、施工方、第三方监理三方共同现场验收,本家装工程主体结构、核心使用功能符合设计文件及国家、行业现行装饰装修工程质量验收标准,但存在墙面涂料起皮污染、顶面涂料漏涂透底起皮、台盘插座缺地线三项质量问题,本次验收原则合格。
    上述整改事项须在业主入住前全部完成。整改完毕后,施工方应通知监理方及业主进行专项复检。复检合格后,本工程方视为最终验收合格。
    验收单位 千诺监理
    验收人员 顾伟
    验收日期 2026-04-25
    验收单
    上海乐杰装饰设计有限公司 (装修公司) 2026-04-24 11:14:08 发布于 电脑端 :
    恭喜徐家汇路吕先生项目竣工,乐杰空间设计祝您乔迁大吉,于昨日完成了开荒保洁,静待业主家具入场
    上海乐杰装饰设计有限公司 (装修公司) 2026-03-18 16:32:07 发布于 电脑端 :
    施工进入最后的竣工阶段,等待定制品安装,可以看到现场的PU雕花线条已经安装完毕,期待最后的落地效果
    油漆阶段
    上海乐杰装饰设计有限公司 (装修公司) 2026-01-27 11:15:28 发布于 电脑端 :
    徐家汇路吕先生一家的工地施工阶段已经进入了尤其阶段的尾声,可以看到墙面的部分造型线条已经安装完毕,期待吕先生工地最终的落地效果,乐杰空间设计为您家的装修保驾护航
    泥木阶段
    程威 第三方监理 2025-12-31 16:45:02 发布于 电脑端 :
    家装工程验收报告

    一、验收基本信息
    验收项目:吕先生住宅家装工程
    验收结论:经专业上门检测,本次家装施工整体符合《建筑装饰装修工程质量验收标准》(GB 50210)及《住宅装饰装修工程质量验收标准》(T/SDDA-004)2021的相关标准,验收合格通过。核心施工环节工艺、材料应用及功能适配性等关键指标满足基础设计要求,工程整体质量达标。

    二、需整改事项及技术要求
    (一)墙面工程
    油漆施工工序前,需完成墙面木枕拆除作业。
    整改要求:木枕拆除彻底无残留,墙面基层平整无破损、凸起,满足油漆施工基层要求
    (二)电气工程
    进户门右侧原废弃线盒,需按规范完成封堵处理。
    整改要求:线盒封堵密实牢固,表面平整度与周边墙体一致,无开裂、空鼓隐患,封堵材料需符合防火防潮要求。
    (三)照明工程
    筒灯安装点位尚未开孔,需根据设计师图纸精准定位开孔。
    整改要求:开孔位置、尺寸与设计图纸完全吻合,开孔边缘整齐无毛刺,孔洞与筒灯底座匹配,无损伤周边线管、防水层情况。
    (四)厨房墙面
    技术提醒:检测发现厨房一处墙面存在空鼓问题,单片空鼓率<5%。

    三、验收说明
    本次验收合格仅针对家装工程主体施工质量,上述整改事项需在后续装饰工序施工前完成,整改完成后建议进行复检。
    请严格按照相关施工规范及整改要求执行,确保工程整体质量达标,避免因整改不到位引发后期使用问题。
    感谢吕先生的配合,如有疑问可随时与我方沟通。
    验收单位:千诺监理​
    验收人员:顾伟​
    验收日期:2025年12月27日
    上海乐杰装饰设计有限公司 (装修公司) 2025-12-17 14:57:05 发布于 电脑端 :
    防盗门的水泥灌浆工艺,并安装防盗门,在安装完防盗门之后会做上成品保护。
    水电阶段
    程威 第三方监理 2025-11-11 15:26:38 发布于 电脑端 :
    家装水电工程验收报告​
    一、验收基本信息​
    验收项目:吕先生住宅家装水电工程​
    验收结论:经专业上门检测,本次水电工程施工质量基本符合《建筑电气工程施工质量验收规范》(GB 50303-2015)及《建筑给水排水及采暖工程施工质量验收规范》(GB 50242-2016)相关标准,局部区域需整改且拍照确认后方可通过全部验收。

    二、需整改事项及技术要求
    (一)电气线路局部加固与连接优化
    局部区域线管固定不牢固,线盒之间连接未使用专用锁扣,存在线路松动及安全隐患。
    整改要求: 对松动线管进行加固处理,线盒连接处补充安装专用锁扣,确保管线固定可靠、接口严密。
    (二)配电箱系统升级
    电箱外总表规格不符合用电负荷要求,总开关已配备漏电保护装置,但分路开关未设置漏电保护功能,存在安全风险。
    整改要求: 建议将总表更换为C63规格,各分路开关补充安装漏电保护装置,确保用电系统安全可靠。
    (三)厨房排水管坡度调整
    厨房下水排管长度过长,且未设置合理排水坡度,易导致排水不畅及积水问题。
    整改要求: 调整排水管长度及敷设路径,并按规范设置排水坡度(坡度≥1%),确保排水畅通无阻并进行通水试验。
    (四)室内孔洞封堵处理
    水电工程验收合格后,需对室内墙体、地面等部位的管线孔洞进行密封处理,防止渗水、漏气等隐患。
    整改要求: 采用防火泥或水泥砂浆对孔洞进行分层封堵,确保密封严实、表面平整,与基层衔接牢固,有效阻断水、气渗透路径。

    三、验收说明
    本次验收结论基于水电工程主体质量评定,上述整改事项需在下一工序前全部完成,并拍照存档备查。整改结束后建议进行复检,确保各项问题处理到位,避免影响后续施工及长期使用功能。整改完成后把相应照片和视频在项目群上传,以符合复检条件。
    请施工方严格按照规范要求落实整改,确保工程质量全面达标,避免因整改不到位引发后期使用问题。
    感谢吕先生的配合与支持,如有疑问请及时与我方联系沟通。

    验收单位: 千诺监理
    验收人员: 顾伟
    验收日期:2025年11月8日
    上海乐杰装饰设计有限公司 (装修公司) 2025-11-09 16:20:07 发布于 电脑端 :
    2天前也就是11月7日,咱们水电阶段的工艺正式结束,邀请了专业的工程监理到现场进行工艺验收,通过验收后准许进入下一阶段,泥木阶段的施工,期待业主新家的蜕变
    拆改阶段
    上海乐杰装饰设计有限公司 (装修公司) 2025-10-14 10:25:11 发布于 电脑端 :
    拆旧阶段进行中,天气渐渐转凉了,咱们徐家汇路吕先生一家的工地此刻正在拆旧阶段,拆旧工人袁师傅认真负责,每天会在施工沟通群中汇报拆旧进度,让业主不用到工地上也能知晓施工进度,让业主安心放心,业主的满意就是我们的最高目标,期待最终的落地效果
    网站点评:
    正常
    乐杰装饰的工地播报认真仔细,让业主安心放心。👍🏻👍🏻👍🏻
    上海乐杰装饰设计有限公司 (装修公司) 2025-10-10 10:20:25 发布于 电脑端 :
    10月9号上午10点18分,吉时吉日,开工大吉,乐杰空间设计为业主准备了一场隆重的开工仪式,也采访了吕先生选择我们乐杰空间设计的初衷,主要是认可我们公司的经营模式,也对乐杰空间设计的操作规范性给予了高度的认可,对于设计师的设计能力以及服务态度都十分满意!让我们一起期待几个月后的完美落地效果
    准备阶段
    上海乐杰装饰设计有限公司 (装修公司) 2025-09-30 10:23:41 发布于 电脑端 :
    2025年9.7号收到吕先生的量房通知,第二天量完回来第一时间为吕先生一家定制专属方案和报价,签约前有监理委的监理老师帮助审核图纸、预算报价以及合同,9.21号吕先生第一次到店沟通方案报价,各方面都很满意,9.27号到再次到店,在各位老师的见证下正式签约成功,一共20天时间,非常感谢业主对我司的信任,也感谢上海装潢网各位老师们大力支持。 敬请大家期待设计方案完美交付!
    官方客服 (装潢网) 2025-09-28 12:27:28 发布于 电脑端 :
    业主吕先生的装修工地已成功创建,施工企业为上海乐杰装饰设计有限公司,播报须知:为了评比最美工地,所有施工人员须参与到播报中,播报图片要求清晰,并附加文字说明,让装修小白也能一目了然,积极播报,更好的体现工艺的专业性,取得业主的好评是我们服务的目标,每个阶段不得少于两次播报,装潢网巡视员会对工地和播报进行审核,如有疑问请拨打:400-118-8580
    预约工地播报
    或致电400-118-8580咨询
    全程监督
    全程跟踪施工进度
    合同审核
    装修合同专家审核
    工人素质
    人员素质和服务保证
    施工规范
    符合施工标准
    按时完工
    杜绝拖延工期
    在线装修预约
    已有208381位业主申请装修预约服务
    立即申请