欢迎来到上海装潢网
(业主)
张斌
|
房屋类型:
|
住宅公寓-二房
|
承包方式:
|
全包
|
|
预算金额:
|
12.28万元
|
房屋面积:
|
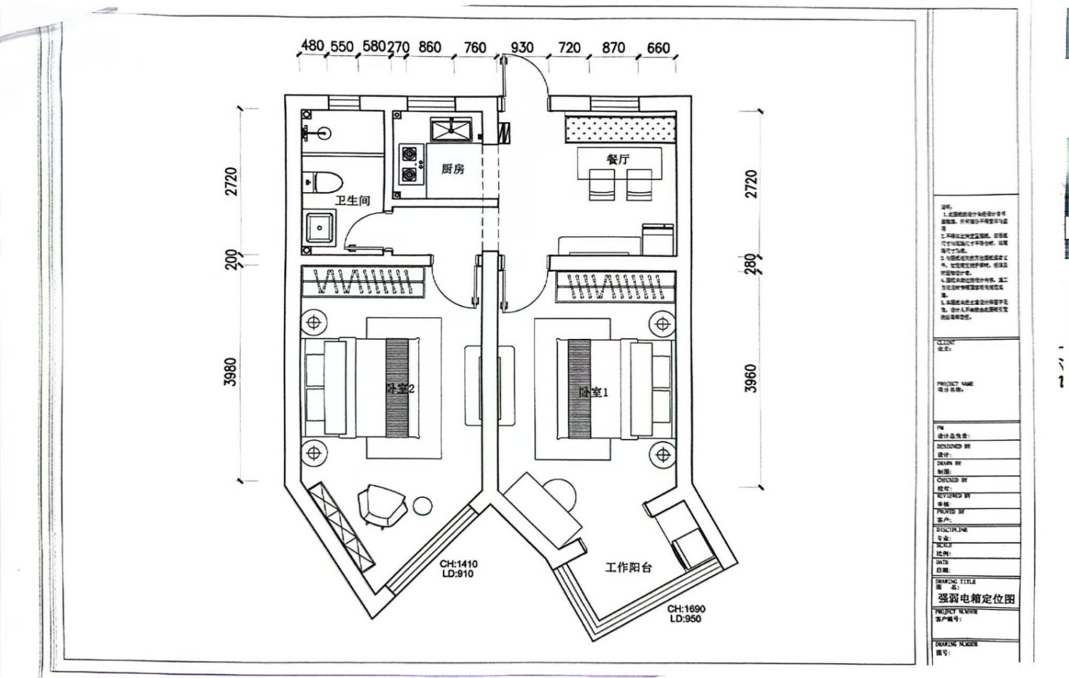
69㎡
|
|
开工日期:
|
2026-04-28
|
完工日期:
|
2026-08-28
|
|
装修风格:
|
简约
|
工地编号:
|
260421401
|
(施工)
上海沪尚优工建筑装饰设计咨询有限公司
联系人:
郭寿文
总经理
联系电话:
400-118-8580
公司地址:
古北路686号4CD
口碑值:
45882
全站排名第3
参与人员
官方客服
装潢网
张斌
业主
上海沪尚优工建筑装饰设计咨询有限公司
装修公司
徐壬
设计师
饶国安
材料人员
吴明
油漆工
万高峰
木工
练如成
泥工
李晓
水电工
郭寿文
门店经理
张亮
敲墙师傅
节点播报
拆改阶段
上海沪尚优工建筑装饰设计咨询有限公司
(装修公司)
2026-05-06 16:36:14
发布于
APP
:
节前开工、因为五一放假停了几天,今天基本拆除结束,明天收一下尾,接着就安排砌粉墙的材料进场,因为客户的信任选择我们、我们就一定不会辜负这份信任!希望所有装修的业主都能有一个满意开心的装修体验!
准备阶段
上海沪尚优工建筑装饰设计咨询有限公司
(装修公司)
2026-04-21 16:21:33
发布于
电脑端
:
上海装潢网权威见证:普陀区张先生家装签约圆满完成,平台公信力再获认可
2026 年 4 月 21 日,上海装潢网线下监督服务再结硕果!普陀区岚皋路 166 弄 6 号张先生,与上海沪尚优工建筑装饰设计咨询有限公司(上海装潢网网络监督单位、质保金企业),在上海装潢网资深监督专员杨老师全程见证下,正式签订住宅装修施工合同。
本次签约项目为69㎡住宅装修,合同总价12.28 万元,从需求对接、方案沟通到合同签署,全程在上海装潢网监督下规范推进,确保业主权益与装修服务透明化、标准化。
一、平台监督护航,签约全程公开透明
上海装潢网作为上海市市场监督管理局消费维权联络点、上海装潢网人民调解工作站,深耕家装行业 14 年,始终以 “监督、保障、维权” 为核心,为业主与装企搭建公正桥梁。本次签约中:
全程见证:杨老师现场监督合同条款核对、费用明细确认、双方权责约定,杜绝 “隐形增项”“模糊条款” 等装修陷阱;
资质核验:沪尚优工作为平台认证的网络监督单位,缴纳 5 万元质保金、口碑值 44262,设计与施工资质齐全,施工团队专业规范;
权益保障:签约项目同步在上海装潢网备案,后续施工过程中,平台将持续跟进监督,若装企出现违规行为,平台可先行垫付理赔,为业主装修全程兜底。
二、业主选择背后:信赖上海装潢网的公信力
张先生表示:“对比多家装修公司后,最终选择通过上海装潢网对接沪尚优工,就是看重平台的监督机制和维权保障。有杨老师现场把关,合同签得明明白白,后续施工也更安心,不用再担心装修踩坑。”
这正是上海装潢网的核心价值 ——14 年间免费处理装修投诉约 20000 起,调解成功率超 80%,以 “枫桥经验” 创新化解装修矛盾,成为上海业主信赖的家装服务 “定心丸”。
三、沪尚优工:平台认证装企,品质服务有保障
上海沪尚优工建筑装饰设计咨询有限公司,作为上海装潢网优质合作装企,拥有近两千平建材一站式展厅,专注家装设计与施工,坚持 “透明报价、品质交付、售后无忧”。本次签约项目,将严格按照合同约定推进,从设计、选材到施工、验收,全程接受上海装潢网监督,确保 69㎡爱家完美落地。
四、上海装潢网:您的家装全程 “守护者”
选择上海装潢网,就是选择放心装修、安心保障:
2026 年 4 月 21 日,上海装潢网线下监督服务再结硕果!普陀区岚皋路 166 弄 6 号张先生,与上海沪尚优工建筑装饰设计咨询有限公司(上海装潢网网络监督单位、质保金企业),在上海装潢网资深监督专员杨老师全程见证下,正式签订住宅装修施工合同。
本次签约项目为69㎡住宅装修,合同总价12.28 万元,从需求对接、方案沟通到合同签署,全程在上海装潢网监督下规范推进,确保业主权益与装修服务透明化、标准化。
一、平台监督护航,签约全程公开透明
上海装潢网作为上海市市场监督管理局消费维权联络点、上海装潢网人民调解工作站,深耕家装行业 14 年,始终以 “监督、保障、维权” 为核心,为业主与装企搭建公正桥梁。本次签约中:
全程见证:杨老师现场监督合同条款核对、费用明细确认、双方权责约定,杜绝 “隐形增项”“模糊条款” 等装修陷阱;
资质核验:沪尚优工作为平台认证的网络监督单位,缴纳 5 万元质保金、口碑值 44262,设计与施工资质齐全,施工团队专业规范;
权益保障:签约项目同步在上海装潢网备案,后续施工过程中,平台将持续跟进监督,若装企出现违规行为,平台可先行垫付理赔,为业主装修全程兜底。
二、业主选择背后:信赖上海装潢网的公信力
张先生表示:“对比多家装修公司后,最终选择通过上海装潢网对接沪尚优工,就是看重平台的监督机制和维权保障。有杨老师现场把关,合同签得明明白白,后续施工也更安心,不用再担心装修踩坑。”
这正是上海装潢网的核心价值 ——14 年间免费处理装修投诉约 20000 起,调解成功率超 80%,以 “枫桥经验” 创新化解装修矛盾,成为上海业主信赖的家装服务 “定心丸”。
三、沪尚优工:平台认证装企,品质服务有保障
上海沪尚优工建筑装饰设计咨询有限公司,作为上海装潢网优质合作装企,拥有近两千平建材一站式展厅,专注家装设计与施工,坚持 “透明报价、品质交付、售后无忧”。本次签约项目,将严格按照合同约定推进,从设计、选材到施工、验收,全程接受上海装潢网监督,确保 69㎡爱家完美落地。
四、上海装潢网:您的家装全程 “守护者”
选择上海装潢网,就是选择放心装修、安心保障:
官方客服
(装潢网)
2026-04-21 16:04:19
发布于
电脑端
:
业主张斌的装修工地已成功创建,施工企业为上海沪尚优工建筑装饰设计咨询有限公司,播报须知:为了评比最美工地,所有施工人员须参与到播报中,播报图片要求清晰,并附加文字说明,让装修小白也能一目了然,积极播报,更好的体现工艺的专业性,取得业主的好评是我们服务的目标,每个阶段不得少于两次播报,装潢网巡视员会对工地和播报进行审核,如有疑问请拨打:400-118-8580