欢迎来到上海装潢网
    首页 > 工地播报 > 工地列表 > 装潢网监督企业泰扬装饰公司签署,三房95平米20万元
    已完工
    装潢网监督企业泰扬装饰公司签署,三房95平米20万元
    浏览量: 1350
    微信分享
    我要预约
    (业主) 王女士
    房屋类型:
    住宅公寓-三房
    承包方式:
    全包
    预算金额:
    20万元
    房屋面积:
    95㎡
    开工日期:
    完工日期:
    装修风格:
    工地编号:
    191821506
    联系人:
    常万达 总经理
    联系电话:
    400-118-8580
    公司地址:
    长宁区中山公园凯旋路399号龙之梦雅士大厦2楼201-217
    口碑值:
    365 全站排名第260
    参与人员
    官方客服
    装潢网
    王女士
    业主
    上海泰扬建筑装饰工程有限公司
    装修公司
    纪文宝
    第三方监理
    节点播报
    竣工阶段
    王女士 (业主) 2022-11-18 09:52:26 发布于 手机端 :
    我家的房子现在终于装修好了,从2021.12月份开始,过年两个月不能动工加上疫情三个多月整整六个月没法开工,到2022.11终于完工了, 这里面的辛苦只有经历过装修的人才能体会。 我找了一位监理帮我全程验收指导,当然泰扬公司也有监理负责。 我选择的是半包工程,含黄沙水泥油漆+人工费, 除此其他辅材都有我负责去买,虽然很辛苦但是品质上自己能把控。 总的来说我还是比较满意的,特别是后期的一个油漆工入场,把前期那种不直的墙面都把控很好,垂直顺平。在装修期间出现各种各样的状况,但最终都还是解决了。关于装修费用这一块,说句实在话也是超过我的预期了。我在这里也要特别感谢装潢网的王老师,全程也在群里给我支持协助。感谢!
    上海泰扬建筑装饰工程有限公司 (装修公司) 2022-11-16 14:56:02 发布于 电脑端 :
    家具会陆续进场,硬装结工,感谢客户的支持与信任~
    网站点评:
    正常
    你们公司这个业主工程即将结束,装潢网服务平台要求企业让业主最后做点评?本工程相关施工人员不够完善企业需要添加补全,以后业主找起来比较方便。
    油漆阶段
    王女士 (业主) 2022-09-12 21:42:22 发布于 手机端 :
    现在遇到非常棘手的问题,未装修前家中客厅颜色是浅黄色,柔和温馨,很喜欢,这次按照色卡选的颜色,色卡浅,可实际调配后上墙后颜色很黄,特别是晚上颜色非常深,很土气,现在很焦急,不知如何补救,施工队长沒有明确说下一步怎么解决?望有关领导协助解决,不要再做增项了。
    上海泰扬建筑装饰工程有限公司 (装修公司) 2022-08-28 15:47:22 发布于 电脑端 :
    油漆收尾阶段
    网站点评:
    一般
    本工程上海泰扬公司在施工播报中质量不高,装潢网监督服务平台提示,施工人员没有加入本工程播报中,对业主以后维修找这些人是个问题?还有这些照片不是施工人员本人上传,所以就没有文章表达的含义,希望泰扬公司领导层高度重视,我们的装修工地播报不是做给别人看的,也不是给我做的,是实实在在为业主以后房子维修能够找到隐蔽工程维修提供的看不见的依据。
    泥木阶段
    上海泰扬建筑装饰工程有限公司 (装修公司) 2022-07-24 13:18:02 发布于 电脑端 :
    6.14客户反映的阳台渗水到厨房的问题经过两次闭水实验后,确认不是我方责任。
    此次闭水实验结果甲方请的第三方监理也核实确认了。
    原始墙面问题已全给户主解决完毕。以下贴图为修复好的图
    网站点评:
    正常
    怎么就上传一张照片?是不允许的。
    上海泰扬建筑装饰工程有限公司 (装修公司) 2022-06-23 16:01:56 发布于 电脑端 :
    水电阶段
    官方客服 (装潢网) 2022-02-23 10:55:09 发布于 电脑端 :
    装潢网装修业主您放心,我们装潢网的宗旨是,全民监督、全程监理、全始全终。谢谢您的反馈!
    上海泰扬建筑装饰工程有限公司 (装修公司) 2022-01-16 15:00:36 发布于 电脑端 :
    水电阶段
    上海泰扬建筑装饰工程有限公司 (装修公司) 2022-01-12 10:10:31 发布于 电脑端 :
    现阶段水电工程
    上海泰扬建筑装饰工程有限公司 (装修公司) 2022-01-05 11:06:08 发布于 电脑端 :
    正在进行水电工程中
    拆改阶段
    王女士 (业主) 2022-06-14 10:50:25 发布于 手机端 :
    阳台渗水到厨房, 疫情期间无法施工,坚持3月。上周对阳台漏水处凿开重做,但下雨天还是渗水到厨房。这周四再次整改。
    上海泰扬建筑装饰工程有限公司 (装修公司) 2021-12-30 11:08:38 发布于 电脑端 :
    近期还在拆改中, 快接近尾声。 接下去马上进行水电工程
    准备阶段
    上海泰扬建筑装饰工程有限公司 (装修公司) 2021-12-23 17:15:31 发布于 电脑端 :
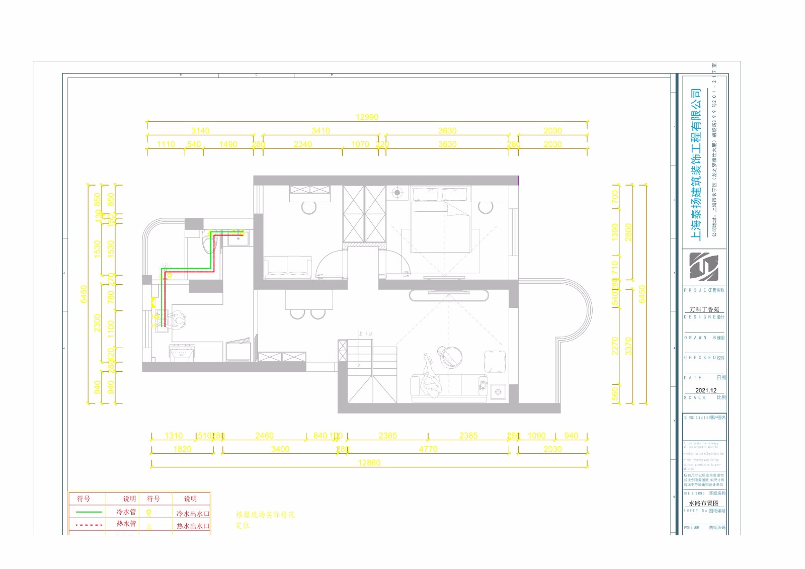
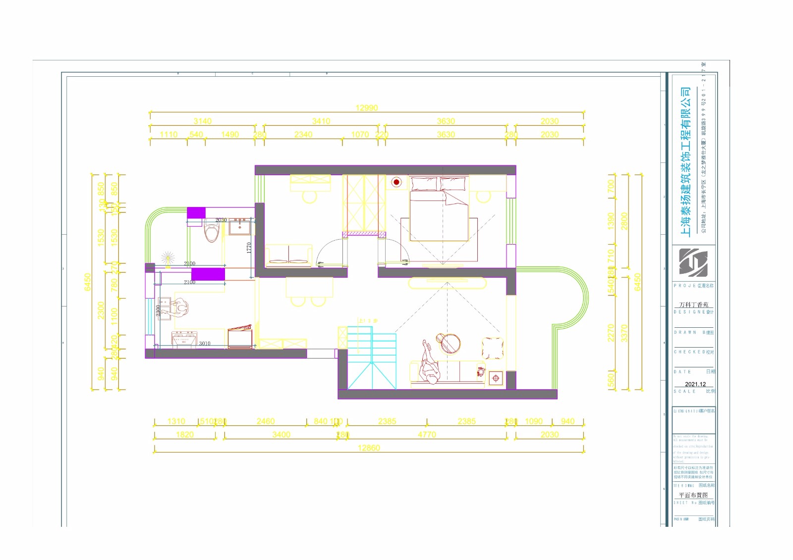
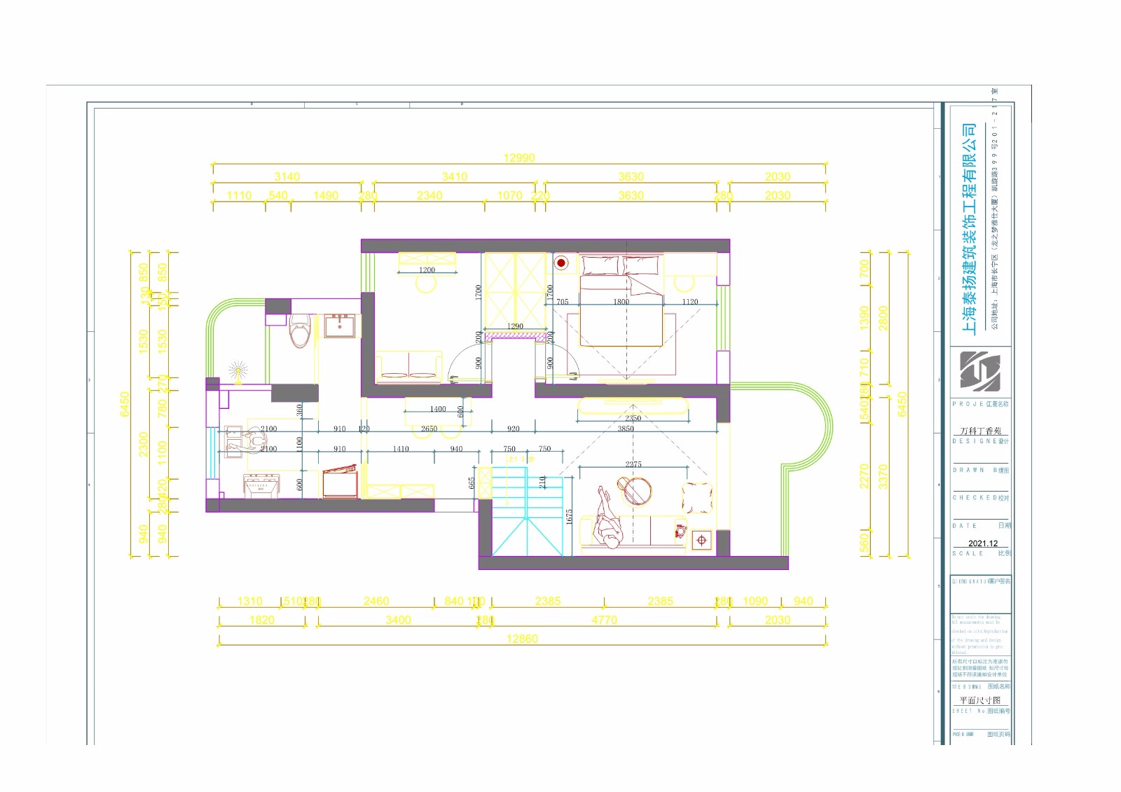
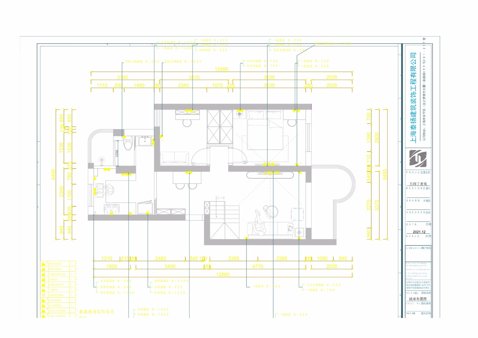
    图纸已上传
    上海泰扬建筑装饰工程有限公司 (装修公司) 2021-12-23 17:11:53 发布于 电脑端 :
    合同已上传
    上海泰扬建筑装饰工程有限公司 (装修公司) 2021-12-23 17:09:08 发布于 电脑端 :
    12.20已开工
    官方客服 (装潢网) 2021-12-18 10:19:38 发布于 电脑端 :
    业主王女士的装修工地已成功创建,施工方为上海泰扬建筑装饰工程有限公司,请及时补充参与人员,并定时播报工地进展。如有疑问请拨打:400-118-8580
    预约工地播报
    或致电400-118-8580咨询
    全程监督
    全程跟踪施工进度
    合同审核
    装修合同专家审核
    工人素质
    人员素质和服务保证
    施工规范
    符合施工标准
    按时完工
    杜绝拖延工期
    在线装修预约
    已有208330位业主申请装修预约服务
    立即申请