欢迎来到上海装潢网
    首页 > 工地播报 > 工地列表 > 上海虹口区71平米10万元
    已完工
    上海虹口区71平米10万元
    浏览量: 539
    微信分享
    我要预约
    (业主) 张女士
    房屋类型:
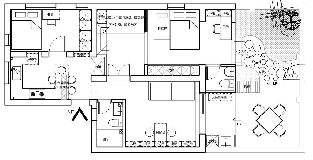
    2室1厅1厨1卫
    承包方式:
    半包
    预算金额:
    10万元
    房屋面积:
    71㎡
    开工日期:
    2023-04-25
    完工日期:
    2023-07-25
    装修风格:
    轻法式
    工地编号:
    230423329
    联系人:
    钱广惠 副总经理
    联系电话:
    400-118-8580
    公司地址:
    斜土路500号人才大厦303
    口碑值:
    300 全站排名第319
    参与人员
    官方客服
    装潢网
    张女士
    业主
    上海爱予家建筑装饰工程有限公司
    装修公司
    马云桂
    项目经理
    邱志远-勒登暖通
    空调安装
    周欢
    设计师
    节点播报
    油漆阶段
    张女士 (业主) 2023-07-30 10:27:39 发布于 电脑端 :
    油漆:装修公司用的佐敦金百士漆环保等级不够,所以我们业主自己买了立邦儿童漆和投影漆,墙面腻子按照项目经理的推荐换成了美巢。
    网站点评:
    正常
    张女士希望您每一个上传播报照片不要少于6张。谢谢您对我们的工作的支持!
    泥木阶段
    张女士 (业主) 2023-07-30 10:20:58 发布于 电脑端 :
    泥木后续:美缝用的是装修公司推荐的聚脲美缝,工地做了简单的保护,墙面做了防水防潮处理。
    张女士 (业主) 2023-07-30 10:12:53 发布于 电脑端 :
    泥木:这个阶段工程变更比较多,原先定的是做简单的双眼皮吊顶变成了全屋吊平顶;院墙老化进行了铲除和粗砂粉刷,安装了成品排水沟;原定全屋通铺瓷砖,改为主卧、次卧和客厅铺木地板;阳台和天井平台因为原水泥地老化,进行了铺钢筋现浇;打开了院子门洞;
    监理雍老师来检查之后,建议把东面靠外面的墙根进行处理,后面增加了拆除、防水、粉刷的工程。工程质量较好,地面墙面平整度均过关,只有一些小的问题。
    水电阶段
    张女士 (业主) 2023-07-30 09:52:36 发布于 电脑端 :
    水电:水电工师傅技术很好,布线合理规范,监理老师非常负责任,把水电布线各个方面都进行了检查和验收,指出了一些问题(验收单图片有详细信息),并且发现部分墙面有空鼓。
    装潢网王老师对合同中水电米数的预估很准确。
    风管机也是这个阶段进行布管。
    网站点评:
    正常
    尊敬的装修业主张女士您好!我是装潢网在线客服人员,您的播报我看相机下面流露你们家的住的地址/为了安全起见请您把照片下面水印去掉。谢谢!同时提醒装饰企业人员需要添加到播报来,水电工、木工、等所有工种这样我们可以追责到每一个人。
    拆改阶段
    张女士 (业主) 2023-07-29 09:40:59 发布于 电脑端 :
    项目:天井(生活垃圾、阳台、大树、原有的烂房屋基础、水泥地),其中阳台拆旧过程中地面开裂因此全部拆除;厨房和卫生间铲至红砖,其中厨房墙面凹凸不平程度较高,卫生间在拆除过程中墙体倒塌;原定其他房间墙壁铲除纸筋灰,但师傅铲不动所以铲除表面腻子;原地面没有地板和瓷砖,无拆除;拆除所有家具、水管电线。
    准备阶段
    上海爱予家建筑装饰工程有限公司 (装修公司) 2023-04-23 18:35:40 发布于 电脑端 :
    客户方案已确认,今日喜签约。待分配项目经理,制定施工排期表。
    官方客服 (装潢网) 2023-04-23 17:36:04 发布于 电脑端 :
    业主张女士的装修工地已成功创建,施工方为上海爱予家建筑装饰工程有限公司,请及时补充参与人员,并定时播报工地进展。如有疑问请拨打:400-118-8580
    预约工地播报
    或致电400-118-8580咨询
    全程监督
    全程跟踪施工进度
    合同审核
    装修合同专家审核
    工人素质
    人员素质和服务保证
    施工规范
    符合施工标准
    按时完工
    杜绝拖延工期
    在线装修预约
    已有208330位业主申请装修预约服务
    立即申请